Revit2020是一款由Autodesk公司官方所打造的BIM模型设计软件,Revit2020中文版相较于前几个版本来说,兼容性以及功能得到了极大的提升。该软件目前已经完美兼容win10系统能够为用户提供PDF图纸导入、机电设备增强以及建筑建模增强等非常实用的功能,能够为从事3d设计行业的用户带来非常不错的使用体验。


构建建筑构件模型,分析和模拟系统及结构,以及迭代设计。从 Revit 模型生成文档。
2、互操作性
与扩充项目团队的成员合作。Revit 以 IFC、DWG 和 DGN 等各种常用格式导入、导出及链接数据。
3、协作
多个项目参与者可以访问集中共享的模型。这将促成更佳的协调,从而减少冲突和返工。
4、可视化
使用模型创建更具吸引力的 3D 视觉效果,更有效地向项目所有者和团队成员沟通设计意图。
5、工作共享
来自多个领域的参与者可在同一个集中共享的文件中共享和保存他们的工作。
6、附加模块
在 Autodesk App Store 上使用 API 访问、附加模块和内容库扩展 Revit 功能。
7、注释
使用 WYSIWYG 编辑功能更有效地沟通设计以及让您能够控制文本外观的功能。
8、Dynamo for Revit
展开并优化 BIM 工作流的开源图形编程界面,其随 Revit 一起安装。
9、互操作性和 IFC
Revit 使用 IFC4 等各种常用格式导入、导出及链接数据。

2.拥有能量分析、将图形导出为gbxml格式以及增强了主体栏杆扶手和墙显示等多种功能,有从事三维模型设计的朋友不要错过。
3.软件专为建筑信息模型而构建。
4.BIM是以从设计、施工到运营的协调、可靠的项目信息为基础而构建的集成流程。
5.通过采用BIM,建筑公司可以在整个流程中使用一致的信息来设计和绘制创新项目。
6.还可以通过精确实现建筑外观的可视化来支持更好的沟通,模拟真实性能以便让项目各方了解成本、工期与环境影响。
7.BIM支持建筑师在施工前更好地预测竣工后的建筑,使他们在如今日益复杂的商业环境中保持竞争优势。
8.BIM能够帮助建筑师减少错误和浪费,以此提高利润和客户满意度,进而创建可持续性更高的精确设计。
9.BIM能够优化团队协作,其支持建筑师与工程师、承包商、建造人员与业主更加清晰、可靠地沟通设计意图。
10.建筑行业中的竞争极为激烈,需要采用独特的技术来充分发挥我们专业人员的技能和丰富经验。
11.Autodesk Revit消除了很多庞杂的任务,我们的员工对其非常满意。
12.Autodesk Revit Architecture软件能够帮助在项目设计流程前期探究最新颖的设计概念和外观,并能在整个施工文档中忠实传达您的设计理念。
13.Autodesk Revit Architecture面向建筑信息模型(BIM)而构建,支持可持续设计、碰撞检测、施工规划和建造,同时帮助您与工程师、承包商与业主更好地沟通协作。
14.设计过程中的所有变更都会在相关设计与文档中自动更新,实现更加协调一致的流程,获得更加可靠的设计文档。
15.Autodesk Revit Architecture全面创新的概念设计功能带来易用工具,帮助您进行自由形状建模和参数化设计,并且还能够让您对早期设计进行分析。
16.借助这些功能,可以自由绘制草图,快速创建三维形状,交互地处理各个形状。
17.您可以利用内置的工具进行复杂形状的概念澄清,为建造和施工准备模型。
18.随着设计的持续推进,Autodesk Revit Architecture能够围绕最复杂的形状自动构建参数化框架,并为您提供更高的创建控制能力、精确性和灵活性。
19.从概念模型到施工文档的整个设计流程都在一个直观环境中完成。

关闭打开项目:Ctrl+F4
循环选择光标位置对象:Tab键
打开视图导航:Shift+W
取消命令或终止命令:Esc键
显示按键提示:F10键
反向查看临近或者连接图元的选项或选择:Shift+Tab
执行操作:Enter键
翻转所选图元,修改其方向:空格键
二、建模与绘图常用快捷键
墙:WA/W+空格
房间:RM
门:DR
房间标记:RT
窗:WN
楼板:SB/S+空格
柱子:CL
轴线:GR
标高:LL
对齐标注: DI
详图线: DL
模型线: LI
绘制参照平面:RP
按类别标记: TG
文字:TX
放置构件:CM
三 、编辑修改工具常用快捷键
图元属性:PP或者Ctr1+1
复制:CO/C+空格
移动:MV
删除:DE
旋转:RO
阵列:AR
重复上个命令:RC或者Enter
定义旋转中心:R3或空格键
镜像-拾取线:MM
恢复上次选择:Ctrl+
创建组:GP
锁定位置:UP
匹配对象类型:MA/M+空格键
选择全部实例:SA
线处理:LW
填色:P
拆分区域:SF
拆分图元:SL
修剪/延伸:TR
对齐:AL
偏移:OF/S+空格健
四、捕捉替代常用快捷键
捕捉远距离对象:SR
工作平面网络:SW
交点:SI
切点:ST
中心:SC
最近点:SN
中点:SM
点:SX
捕捉到云点:PC
端点:SE
垂足:SP
关闭替换:SS
形状闭合:SZ
象限点:SQ
关闭捕捉:So
五、视图控制常用快捷键
缩放全部以匹配:ZA/Z+空格
区域放大:ZR
缩放配置:ZF
上一次缩放:ZP
动态视图:F8或Shift +W
重设临时隐藏:HR
取消隐藏图元:EU
渲染:RR
视图窗口重叠:WC
线框显示样式:WF
隐藏线显示样式:HL/H+空格
带边框着色显示模式:SD
细线显示模式:TL
视图图元属性:VP
隐藏图元:EH
取消隐藏类别:VU
快捷键定义窗口:KS/K+空格
刷新:F5
可见性图形:VV/VG或V+空格


2、下载完成之后,打开文件夹,双击打开安装程序。

3、根据自身需求更改软件解压后的存放位置,小强选择的是D盘。

4、等待解压完成。

5、解压完成之后,软件会自动进入安装界面,点击安装。

6、勾选【我接受】,然后点击【下一步】。

7、点击【浏览】更改软件安装路径:建议安装到除C盘以外的磁盘,可在D盘或其它盘里面新建一个文件夹【Revit 2020】,然后点击安装。

8、安装中……

9、注意!进入到【Autodesk Revit Content Libraries 2020 】这个程序的安装时,持续的时间会相对长一些(亲测!有时候会持续2-3小时,甚至更长!),大家一定要耐心等待,并不是安装过程出了问题,因为这个程序是Revit 2020的核心内容库(包括材质系统、各类样板文件、自带族库等等),所以会慢一些,小强建议可以撸两把、吃个鸡啥的……

10、点击【完成】。

11、双击打开电脑桌面上的Revit 2020软件图标。

12、点击【输入序列号】。

13、点击【我同意】。

14、点击【激活】。

15、输入序列号:666-69696969 产品密钥:829L1 然后点击【下一步】。

16、若出现以下提示则需要关闭软件后,重新打开软件激活。

17、选择我具有Autodesk提供的激活码。

18、双击打开安装包中的【Crack】文件夹。

19、选中【xf-adesk20】后,鼠标右击选择【以管理员身份运行】。温馨提示:若打开注册机文件夹后里面没有注册机程序,则需要关闭你电脑杀毒软件和防火墙后再重新解压安装包后打开。

20、把申请号复制到注册机里面的Request中(记得删除原Request中的内容),先点击Patch然后点击确定,再点击Generate后复制Activation中生成的激活码,然后粘贴激活码至我具有Autodesk提供的激活码方框中,最后点击下一步即可。(提示:复制和粘贴的时候只能用快捷键“Ctrl+C”和“Ctrl+V”)详见下图:

21、点击【完成】。

22、安装完成,打开使用。

首先,要绘制图示信息的楼梯,掌握楼梯的基本信息,点击建筑/楼梯,选择楼梯(按草图),选择梯段/直线按钮。



上述操作之后,软件属性栏会弹出楼梯的属性内容,读者需要根据自身需要定义楼梯属性。下图是笔者根据CAD电子图信息定义的楼梯属性。

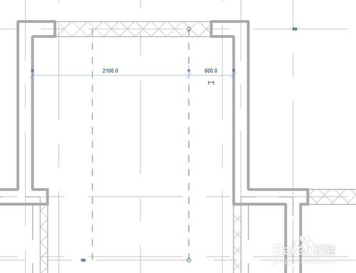
定义完成之后,需要根据设计图纸信息,定位楼梯位置,笔者这里使用修改菜单中的参照平面工具定位楼梯位置。点击参照平面按钮,在视图中绘制辅助轴线定位楼梯,如下图。


定位线绘制完成之后,双击esc键退出参照平面绘制模式,开始绘制楼梯,点击梯段/直线,在视图中捕捉定位线绘制,绘制完成的楼梯平面如下图。

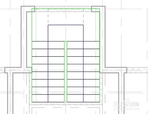
使用对齐工具将楼梯边线对齐到就近的剪力墙,点击对齐按钮,然后先点击楼梯边线要对齐到的位置,然后点击楼梯边线,完成楼梯边线与墙的对齐。之后,点击完成编辑模式的对勾,完成绘制。




上述步骤之后,就完成了标准层一层楼梯的绘制,单击三位视图按钮,可以看一下它的三维效果。


二、revit2020怎么渲染?渲染方法
在Revit主界面打开建立好的模型


打开项目浏览器中的楼层平面进入场地标高,新建一个相机视图。



点击调整相机视图周围的方框将视图调整至合适的大小。

点击视图选项中的渲染按钮,打开渲染设置,引擎设置为光线追踪,质量设置为高,日光设置为静止。



设置完成后点击渲染,接下来等待渲染完就ok了。渲染的速度是根据电脑的配置有关系的,亲们可以根据电脑的配置来选择渲染的质量。


找到导致安装失败的组件名称,到控制面板单击“卸载”,当程序删除后,再次运行Autodesk安装程序,建议使用 Microsoft Fix it。
2、安装Revit的过程中,无法获得授权。
首先卸载Revit及其套件,在控制面板-程序与功能里,把所有Autodesk的软件删除;重启之后打开WiseRegCleaner;选择深度扫描,清除所有无效注册表,再次 重启重新安装就能成功注册。
3、Revit中如何输入特殊符号?例如:需要输入“m?2;”符号。
可以通过Alt+数字小键盘实现(按住“Alt不放,然后再小键盘种输入一串数字),常用的有:Alt+0178=“?2;”,Alt+0179=“?3;”,Alt+0176=“°”等;也可以使用输入法也可以实现,如:平方=“?2;”,立方=“?3;”,度=“°”等;
4、若不小心将Revit面板上的“属性”或者“项目浏览器”关闭,怎么处理?
点击选项卡中的“视图”,选择“窗口”中的“用户界面”按钮,再点击你所需要的。
5、Revit 如何在标签中使文字换行显示?
先在族编辑器中把该标签的边框拉小一点,然后在想要换行处键入一个空格,便会在空格处进行换行。但是切记,只有在族编辑器中设置的标签框足够小时,在项目文件中才会换行,如果标签框比较大,则会超出图纸边框。
6、Revit视图中默认的背景颜色为白色,能否修改?
可以修改,点击选项→图形→颜色→反转背景色即可修改。
7、如何控制在插入建筑柱时不与墙自动合并?
定义建筑柱族时,单击其“属性”中的“类别和参数”按钮,打开其对话框不勾选“将几何图形自动连接到墙”的选项。
8、如何合并拆分后的图元?
选择拆分后任意一段图元,点击其操作夹点使其分离,然后再拖动到原位置即可。
9、利用Revit如何创建曲面墙体?
先通过体量工具创建符合要求的体量表面,再将体量表面以生成墙的方式创建成异形墙体。
10、如何实现多人多专业协同工作?
要实现多人多专业协同工作,将涉及到专业间协作管理的问题,仅仅借Revit自身的功能操作是无法完成高效的协作管理,在开始协同前,必须为协同做好准备工作。准备工作的内容:确定协同工作方、确定项目定位信息、确定项目协调机制等;确定协同工作方式:是链接还是工作集的方式;工作集的注意:明确构件的命名规则、文件保存的命名规则等。

【Revit2020软件介绍】
Autodesk Revit 2020是Autodesk公司最新升级推出的一款专业BIM模型设计软件,2020版相较于2019版新增了很多强大功能,如软件交互性的改进、建筑建模增强功能、最优路径实时计算、支持PDF图纸导入和机电设备增强功能等,Autodesk Revit 2020专为建筑信息模型而构建,绝对是从事3D模型设计的工作者的最佳选择。此次发布的最新版Autodesk Revit 2020给相关工作者带来不少惊喜,软件界面更加人性化,一些很好用的功能纷纷放出。
【Revit2020特点介绍】
1、设计构建建筑构件模型,分析和模拟系统及结构,以及迭代设计。从 Revit 模型生成文档。
2、互操作性
与扩充项目团队的成员合作。Revit 以 IFC、DWG 和 DGN 等各种常用格式导入、导出及链接数据。
3、协作
多个项目参与者可以访问集中共享的模型。这将促成更佳的协调,从而减少冲突和返工。
4、可视化
使用模型创建更具吸引力的 3D 视觉效果,更有效地向项目所有者和团队成员沟通设计意图。
5、工作共享
来自多个领域的参与者可在同一个集中共享的文件中共享和保存他们的工作。
6、附加模块
在 Autodesk App Store 上使用 API 访问、附加模块和内容库扩展 Revit 功能。
7、注释
使用 WYSIWYG 编辑功能更有效地沟通设计以及让您能够控制文本外观的功能。
8、Dynamo for Revit
展开并优化 BIM 工作流的开源图形编程界面,其随 Revit 一起安装。
9、互操作性和 IFC
Revit 使用 IFC4 等各种常用格式导入、导出及链接数据。

【Revit2020功能介绍】
1.由Autodesk公司打造的一款专业BIM模型设计软件,新版本引入了全新的性能,可以完美兼容Win10操作系统2.拥有能量分析、将图形导出为gbxml格式以及增强了主体栏杆扶手和墙显示等多种功能,有从事三维模型设计的朋友不要错过。
3.软件专为建筑信息模型而构建。
4.BIM是以从设计、施工到运营的协调、可靠的项目信息为基础而构建的集成流程。
5.通过采用BIM,建筑公司可以在整个流程中使用一致的信息来设计和绘制创新项目。
6.还可以通过精确实现建筑外观的可视化来支持更好的沟通,模拟真实性能以便让项目各方了解成本、工期与环境影响。
7.BIM支持建筑师在施工前更好地预测竣工后的建筑,使他们在如今日益复杂的商业环境中保持竞争优势。
8.BIM能够帮助建筑师减少错误和浪费,以此提高利润和客户满意度,进而创建可持续性更高的精确设计。
9.BIM能够优化团队协作,其支持建筑师与工程师、承包商、建造人员与业主更加清晰、可靠地沟通设计意图。
10.建筑行业中的竞争极为激烈,需要采用独特的技术来充分发挥我们专业人员的技能和丰富经验。
11.Autodesk Revit消除了很多庞杂的任务,我们的员工对其非常满意。
12.Autodesk Revit Architecture软件能够帮助在项目设计流程前期探究最新颖的设计概念和外观,并能在整个施工文档中忠实传达您的设计理念。
13.Autodesk Revit Architecture面向建筑信息模型(BIM)而构建,支持可持续设计、碰撞检测、施工规划和建造,同时帮助您与工程师、承包商与业主更好地沟通协作。
14.设计过程中的所有变更都会在相关设计与文档中自动更新,实现更加协调一致的流程,获得更加可靠的设计文档。
15.Autodesk Revit Architecture全面创新的概念设计功能带来易用工具,帮助您进行自由形状建模和参数化设计,并且还能够让您对早期设计进行分析。
16.借助这些功能,可以自由绘制草图,快速创建三维形状,交互地处理各个形状。
17.您可以利用内置的工具进行复杂形状的概念澄清,为建造和施工准备模型。
18.随着设计的持续推进,Autodesk Revit Architecture能够围绕最复杂的形状自动构建参数化框架,并为您提供更高的创建控制能力、精确性和灵活性。
19.从概念模型到施工文档的整个设计流程都在一个直观环境中完成。

【Revit2020快捷键】
一、通用快捷键关闭打开项目:Ctrl+F4
循环选择光标位置对象:Tab键
打开视图导航:Shift+W
取消命令或终止命令:Esc键
显示按键提示:F10键
反向查看临近或者连接图元的选项或选择:Shift+Tab
执行操作:Enter键
翻转所选图元,修改其方向:空格键
二、建模与绘图常用快捷键
墙:WA/W+空格
房间:RM
门:DR
房间标记:RT
窗:WN
楼板:SB/S+空格
柱子:CL
轴线:GR
标高:LL
对齐标注: DI
详图线: DL
模型线: LI
绘制参照平面:RP
按类别标记: TG
文字:TX
放置构件:CM
三 、编辑修改工具常用快捷键
图元属性:PP或者Ctr1+1
复制:CO/C+空格
移动:MV
删除:DE
旋转:RO
阵列:AR
重复上个命令:RC或者Enter
定义旋转中心:R3或空格键
镜像-拾取线:MM
恢复上次选择:Ctrl+
创建组:GP
锁定位置:UP
匹配对象类型:MA/M+空格键
选择全部实例:SA
线处理:LW
填色:P
拆分区域:SF
拆分图元:SL
修剪/延伸:TR
对齐:AL
偏移:OF/S+空格健
四、捕捉替代常用快捷键
捕捉远距离对象:SR
工作平面网络:SW
交点:SI
切点:ST
中心:SC
最近点:SN
中点:SM
点:SX
捕捉到云点:PC
端点:SE
垂足:SP
关闭替换:SS
形状闭合:SZ
象限点:SQ
关闭捕捉:So
五、视图控制常用快捷键
缩放全部以匹配:ZA/Z+空格
区域放大:ZR
缩放配置:ZF
上一次缩放:ZP
动态视图:F8或Shift +W
重设临时隐藏:HR
取消隐藏图元:EU
渲染:RR
视图窗口重叠:WC
线框显示样式:WF
隐藏线显示样式:HL/H+空格
带边框着色显示模式:SD
细线显示模式:TL
视图图元属性:VP
隐藏图元:EH
取消隐藏类别:VU
快捷键定义窗口:KS/K+空格
刷新:F5
可见性图形:VV/VG或V+空格

【Revit2020安装破解】
1、安装配置,目前官方并没有给出Revit 2020的安装配置清单,下面放出小强的电脑配置,给大家一个参考,全程无阻。
2、下载完成之后,打开文件夹,双击打开安装程序。

3、根据自身需求更改软件解压后的存放位置,小强选择的是D盘。

4、等待解压完成。

5、解压完成之后,软件会自动进入安装界面,点击安装。

6、勾选【我接受】,然后点击【下一步】。

7、点击【浏览】更改软件安装路径:建议安装到除C盘以外的磁盘,可在D盘或其它盘里面新建一个文件夹【Revit 2020】,然后点击安装。

8、安装中……

9、注意!进入到【Autodesk Revit Content Libraries 2020 】这个程序的安装时,持续的时间会相对长一些(亲测!有时候会持续2-3小时,甚至更长!),大家一定要耐心等待,并不是安装过程出了问题,因为这个程序是Revit 2020的核心内容库(包括材质系统、各类样板文件、自带族库等等),所以会慢一些,小强建议可以撸两把、吃个鸡啥的……

10、点击【完成】。

11、双击打开电脑桌面上的Revit 2020软件图标。

12、点击【输入序列号】。

13、点击【我同意】。

14、点击【激活】。

15、输入序列号:666-69696969 产品密钥:829L1 然后点击【下一步】。

16、若出现以下提示则需要关闭软件后,重新打开软件激活。

17、选择我具有Autodesk提供的激活码。

18、双击打开安装包中的【Crack】文件夹。

19、选中【xf-adesk20】后,鼠标右击选择【以管理员身份运行】。温馨提示:若打开注册机文件夹后里面没有注册机程序,则需要关闭你电脑杀毒软件和防火墙后再重新解压安装包后打开。

20、把申请号复制到注册机里面的Request中(记得删除原Request中的内容),先点击Patch然后点击确定,再点击Generate后复制Activation中生成的激活码,然后粘贴激活码至我具有Autodesk提供的激活码方框中,最后点击下一步即可。(提示:复制和粘贴的时候只能用快捷键“Ctrl+C”和“Ctrl+V”)详见下图:

21、点击【完成】。

22、安装完成,打开使用。

【Revit2020使用方法】
一、revit2020怎么画楼梯?画楼梯教程首先,要绘制图示信息的楼梯,掌握楼梯的基本信息,点击建筑/楼梯,选择楼梯(按草图),选择梯段/直线按钮。



上述操作之后,软件属性栏会弹出楼梯的属性内容,读者需要根据自身需要定义楼梯属性。下图是笔者根据CAD电子图信息定义的楼梯属性。

定义完成之后,需要根据设计图纸信息,定位楼梯位置,笔者这里使用修改菜单中的参照平面工具定位楼梯位置。点击参照平面按钮,在视图中绘制辅助轴线定位楼梯,如下图。


定位线绘制完成之后,双击esc键退出参照平面绘制模式,开始绘制楼梯,点击梯段/直线,在视图中捕捉定位线绘制,绘制完成的楼梯平面如下图。

使用对齐工具将楼梯边线对齐到就近的剪力墙,点击对齐按钮,然后先点击楼梯边线要对齐到的位置,然后点击楼梯边线,完成楼梯边线与墙的对齐。之后,点击完成编辑模式的对勾,完成绘制。




上述步骤之后,就完成了标准层一层楼梯的绘制,单击三位视图按钮,可以看一下它的三维效果。


二、revit2020怎么渲染?渲染方法
在Revit主界面打开建立好的模型


打开项目浏览器中的楼层平面进入场地标高,新建一个相机视图。



点击调整相机视图周围的方框将视图调整至合适的大小。

点击视图选项中的渲染按钮,打开渲染设置,引擎设置为光线追踪,质量设置为高,日光设置为静止。



设置完成后点击渲染,接下来等待渲染完就ok了。渲染的速度是根据电脑的配置有关系的,亲们可以根据电脑的配置来选择渲染的质量。


【常见问题】
1、安装Revit时日志文件中显示部分产品无法安装,出现1603错误。找到导致安装失败的组件名称,到控制面板单击“卸载”,当程序删除后,再次运行Autodesk安装程序,建议使用 Microsoft Fix it。
2、安装Revit的过程中,无法获得授权。
首先卸载Revit及其套件,在控制面板-程序与功能里,把所有Autodesk的软件删除;重启之后打开WiseRegCleaner;选择深度扫描,清除所有无效注册表,再次 重启重新安装就能成功注册。
3、Revit中如何输入特殊符号?例如:需要输入“m?2;”符号。
可以通过Alt+数字小键盘实现(按住“Alt不放,然后再小键盘种输入一串数字),常用的有:Alt+0178=“?2;”,Alt+0179=“?3;”,Alt+0176=“°”等;也可以使用输入法也可以实现,如:平方=“?2;”,立方=“?3;”,度=“°”等;
4、若不小心将Revit面板上的“属性”或者“项目浏览器”关闭,怎么处理?
点击选项卡中的“视图”,选择“窗口”中的“用户界面”按钮,再点击你所需要的。
5、Revit 如何在标签中使文字换行显示?
先在族编辑器中把该标签的边框拉小一点,然后在想要换行处键入一个空格,便会在空格处进行换行。但是切记,只有在族编辑器中设置的标签框足够小时,在项目文件中才会换行,如果标签框比较大,则会超出图纸边框。
6、Revit视图中默认的背景颜色为白色,能否修改?
可以修改,点击选项→图形→颜色→反转背景色即可修改。
7、如何控制在插入建筑柱时不与墙自动合并?
定义建筑柱族时,单击其“属性”中的“类别和参数”按钮,打开其对话框不勾选“将几何图形自动连接到墙”的选项。
8、如何合并拆分后的图元?
选择拆分后任意一段图元,点击其操作夹点使其分离,然后再拖动到原位置即可。
9、利用Revit如何创建曲面墙体?
先通过体量工具创建符合要求的体量表面,再将体量表面以生成墙的方式创建成异形墙体。
10、如何实现多人多专业协同工作?
要实现多人多专业协同工作,将涉及到专业间协作管理的问题,仅仅借Revit自身的功能操作是无法完成高效的协作管理,在开始协同前,必须为协同做好准备工作。准备工作的内容:确定协同工作方、确定项目定位信息、确定项目协调机制等;确定协同工作方式:是链接还是工作集的方式;工作集的注意:明确构件的命名规则、文件保存的命名规则等。