PKPM是一款工程管理软件,用户可以在软件内设计框架、平面等各种工程图,便于您能够更加直观的来进行查看和了解。并且PKPM软件内还为用户提供了相关的说明书,便于您可以更好的来上手进行操作。


直接从DWG文件中提取建筑模型进行节能设计。可以最大程度的减轻建筑师的工作量,在方案、扩初和施工图等不同设计阶段方便的进行节能设计,避免了二次建模的工作。
使用建模软件进行建模。CHCE软件提供了自带的建模工具,可以快速高效的完成建筑模型的建立。
可以直接利用PKPM系软件的PMCAD建模数据。如果有了PMCAD的数据,则可以直接进行下一步的节能设计工作。
2、建筑节能设计计算
帮助设计师完成所有相关的热工计算,提供了大量不同保温体系的墙体,屋面和楼板类型,可方便的查询各种保温体系的适用范围和特点。
自动计算建筑物的体形系数和窗墙比等参数,直接读取建筑师在建筑设计中的各种门、窗、墙、屋面、柱、房间等设计参数,进行节能设计,并根据《节能设计标准规范》进行自动校核验算。
3、动态能耗分析计算
CHEC所采用的动态能耗分析计算程序,依据《夏热冬冷地区的居住建筑节能设计标准》JGJ134-2001的规定,按各地的全年气象数据,对建筑物进行全年8760小时的逐时能耗分析计算,计算出每平方米建筑面积的年采暖、空调冷热量指标和耗电量指标,并自动依据《夏热冬冷地区居住建筑节能设计标准》进行判断比较。当计算结果不符合节能设计标准的要求时,使用软件的维护结构设计功能,可以方便地让您的设计满足节能设计的要求。
4、节能建筑的经济指标核算
能进行节能和非节能设计的工程造价比较
能进行在达到相同保温效果下分析不同保温系统的工程造价比较
帮助设计师和甲方选择最为合理的保温系统
节能设计说明书和计算书
CHEC软件可生成符合设计和审图要求的输出文件

对建筑师无需掌握热力学原理,只要一次按键就可以得到相应的帮助。各种计算机结果以不同的颜色直观的显示设计图纸上。
人性
避免形成一个单纯的计算程序,在设计过程中随时帮助检验是否符合规范的标准,如窗墙比、围护结构的传热系数。各种需要的数据自动读取,生成计算结果直接输出、并形成帮助说明。克服单纯的计算软件所产生的设计过程和计算过程无法很好结合的弊端。
智能
如果在设计过程中缺少必要的参数,自动以缺省参数作为第一选择,并作相应的记录,以方便建筑师以后修改和设定。这样在保持设计的连贯性的同时,也方便了设计者的再次修改。


然后点击更改目录,找到你之前建立的文件夹点击确定,最后点击应用进入PKPM操作界面


输入工程名称然后点击确认,第一步是输入轴线,轴线是根据建筑平面图布置的,我的案例就以6米柱距为例。点击轴线网点——点击正交轴线——编辑轴线——最后点确定。


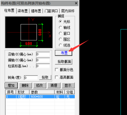
布置柱子,柱子只能在节点的地方布置,柱子是结构的竖向构件,只有先布置了柱子才能布置接下来的结构构件。点击构建布置——选择柱——点击增加 然后根据你的需要定义一个柱的界面尺寸,我就以600x600为例建一个界面,然后再布置到节点上。



布置梁是跟柱子一样的操作方式,只不过梁是在轴线上布置的,如下图所示。


布置完梁之后就可以生成楼板了,生成完楼板之后可以根据自己的想法更改板厚,如果有的网格不想做楼板可以将楼板扣洞。

输入楼板之后就可以输入荷载了,荷载分为楼板的面荷载,梁的线荷载,红色图标指的是恒荷载,蓝色图标指的是活荷载,最后根据建筑的需要把荷载输入即可,但是注意的是在恒活设置当中应该注意点击勾选自动计算现浇板自重,这样就省得你输入结构板本身的自重了。


点击设计参数,根据你工程的实际情况查看规范如实填写

点击楼层组装,根据你楼的层高和层数进行拼装,最后点击整体楼模型,来审查你的模型。


然后选择SATWE分析设计计算并退出建模。



点击设计模型前处理,根据结构规范和你工程的情况来设置参数,最后点击确认。最后点击分析模型及计算——点击生成数据+全部计算即可,然后等待模型计算完成。



最后根据计算结果如配筋,文本查看来判断模型是否合格,如果提示有红色的地方就是你模型不合格的地方,再进行调整,知道模型合格为止。

模型合格后进行施工图绘制,进入施工图绘制的模块,根据相应的提示,绘制梁板柱的施工图即可。


距离可以分为点点距离、点面距离、点线距离等。
在PKPM软件中查询距离的快捷键和命令列表如下:
快捷键: pkpm命令: 功能:
DI InqPP 查询点点距离
DF InqPF 查询点面距离
dl InqPL 查询点线距离
LL InqLL 查询线线间距
二、pkpm的字体库具体在哪个文件夹?
pkpm的字体库具体在路径:/Program Files/pkpm/CFG ,后缀为shx的文件夹。
三、pkpm网络版和单机版的区别?
1.单机版是对个人用户设计的软件,网络版是对一个中小或者大型的企业设计的网络软件。
2.网络版是企业用的,网络版只要服务器端升级,其余的客户端机子就不用升级了,这样就大大减小了企业在众多计算机的升级软件问题上浪费的时间。网络版可以在很多机器上安, 而单机版只可以在不多的几台电脑上安装,安装电脑太多的话,在线升级就不让用了。
四、pkpm软件怎么设置对象捕捉?
1、改一个参数;pkpm/CFG目录下找到PKPM.INI文件。
2、将notdynamicsnap=0改成notdynamicsnap=1就行了。
3、pkpm没有明确的中文名称,一般就直接读pkpm的英文字母。命名是这样的:最早这个软件只有两个模块,PK(排架框架设计)、PMCAD(平面辅助设计),因此合称pkpm。现在这两个模块依然还在,功能大大加强,更加入了大量功能更强大的模块,但是软件名称却不改了还是PKPM。

【软件介绍】
PKPM中国建筑科学研究院建筑工程软件研究所研发的工程管理软件。中国建筑科学研究院建筑工程软件研究所是我国建筑行业计算机技术开发应用的最早单位之一。它以国家级行业研发中心、规范主编单位、工程质检中心为依托,技术力量雄厚。软件所的主要研发领域集中在建筑设计CAD软件,绿色建筑和节能设计软件,工程造价分析软件,施工技术和施工项目管理系统,图形支撑平台,企业和项目信息化管理系统等方面,并创造了PKPM、ABD等知名全国的软件品牌。
【功能介绍】
1、建筑模型的建立(提取)直接从DWG文件中提取建筑模型进行节能设计。可以最大程度的减轻建筑师的工作量,在方案、扩初和施工图等不同设计阶段方便的进行节能设计,避免了二次建模的工作。
使用建模软件进行建模。CHCE软件提供了自带的建模工具,可以快速高效的完成建筑模型的建立。
可以直接利用PKPM系软件的PMCAD建模数据。如果有了PMCAD的数据,则可以直接进行下一步的节能设计工作。
2、建筑节能设计计算
帮助设计师完成所有相关的热工计算,提供了大量不同保温体系的墙体,屋面和楼板类型,可方便的查询各种保温体系的适用范围和特点。
自动计算建筑物的体形系数和窗墙比等参数,直接读取建筑师在建筑设计中的各种门、窗、墙、屋面、柱、房间等设计参数,进行节能设计,并根据《节能设计标准规范》进行自动校核验算。
3、动态能耗分析计算
CHEC所采用的动态能耗分析计算程序,依据《夏热冬冷地区的居住建筑节能设计标准》JGJ134-2001的规定,按各地的全年气象数据,对建筑物进行全年8760小时的逐时能耗分析计算,计算出每平方米建筑面积的年采暖、空调冷热量指标和耗电量指标,并自动依据《夏热冬冷地区居住建筑节能设计标准》进行判断比较。当计算结果不符合节能设计标准的要求时,使用软件的维护结构设计功能,可以方便地让您的设计满足节能设计的要求。
4、节能建筑的经济指标核算
能进行节能和非节能设计的工程造价比较
能进行在达到相同保温效果下分析不同保温系统的工程造价比较
帮助设计师和甲方选择最为合理的保温系统
节能设计说明书和计算书
CHEC软件可生成符合设计和审图要求的输出文件

【软件特点】
简单对建筑师无需掌握热力学原理,只要一次按键就可以得到相应的帮助。各种计算机结果以不同的颜色直观的显示设计图纸上。
人性
避免形成一个单纯的计算程序,在设计过程中随时帮助检验是否符合规范的标准,如窗墙比、围护结构的传热系数。各种需要的数据自动读取,生成计算结果直接输出、并形成帮助说明。克服单纯的计算软件所产生的设计过程和计算过程无法很好结合的弊端。
智能
如果在设计过程中缺少必要的参数,自动以缺省参数作为第一选择,并作相应的记录,以方便建筑师以后修改和设定。这样在保持设计的连贯性的同时,也方便了设计者的再次修改。

【使用教程】
首先要建立一个文件夹作为模型的文件,比如可以再你工作盘中建立一个文件夹然后输入工程的名称。
然后点击更改目录,找到你之前建立的文件夹点击确定,最后点击应用进入PKPM操作界面


输入工程名称然后点击确认,第一步是输入轴线,轴线是根据建筑平面图布置的,我的案例就以6米柱距为例。点击轴线网点——点击正交轴线——编辑轴线——最后点确定。


布置柱子,柱子只能在节点的地方布置,柱子是结构的竖向构件,只有先布置了柱子才能布置接下来的结构构件。点击构建布置——选择柱——点击增加 然后根据你的需要定义一个柱的界面尺寸,我就以600x600为例建一个界面,然后再布置到节点上。



布置梁是跟柱子一样的操作方式,只不过梁是在轴线上布置的,如下图所示。


布置完梁之后就可以生成楼板了,生成完楼板之后可以根据自己的想法更改板厚,如果有的网格不想做楼板可以将楼板扣洞。

输入楼板之后就可以输入荷载了,荷载分为楼板的面荷载,梁的线荷载,红色图标指的是恒荷载,蓝色图标指的是活荷载,最后根据建筑的需要把荷载输入即可,但是注意的是在恒活设置当中应该注意点击勾选自动计算现浇板自重,这样就省得你输入结构板本身的自重了。


点击设计参数,根据你工程的实际情况查看规范如实填写

点击楼层组装,根据你楼的层高和层数进行拼装,最后点击整体楼模型,来审查你的模型。


然后选择SATWE分析设计计算并退出建模。



点击设计模型前处理,根据结构规范和你工程的情况来设置参数,最后点击确认。最后点击分析模型及计算——点击生成数据+全部计算即可,然后等待模型计算完成。



最后根据计算结果如配筋,文本查看来判断模型是否合格,如果提示有红色的地方就是你模型不合格的地方,再进行调整,知道模型合格为止。

模型合格后进行施工图绘制,进入施工图绘制的模块,根据相应的提示,绘制梁板柱的施工图即可。


【常见问题】
一、在pkpm软件中怎样查询距离?距离可以分为点点距离、点面距离、点线距离等。
在PKPM软件中查询距离的快捷键和命令列表如下:
快捷键: pkpm命令: 功能:
DI InqPP 查询点点距离
DF InqPF 查询点面距离
dl InqPL 查询点线距离
LL InqLL 查询线线间距
二、pkpm的字体库具体在哪个文件夹?
pkpm的字体库具体在路径:/Program Files/pkpm/CFG ,后缀为shx的文件夹。
三、pkpm网络版和单机版的区别?
1.单机版是对个人用户设计的软件,网络版是对一个中小或者大型的企业设计的网络软件。
2.网络版是企业用的,网络版只要服务器端升级,其余的客户端机子就不用升级了,这样就大大减小了企业在众多计算机的升级软件问题上浪费的时间。网络版可以在很多机器上安, 而单机版只可以在不多的几台电脑上安装,安装电脑太多的话,在线升级就不让用了。
四、pkpm软件怎么设置对象捕捉?
1、改一个参数;pkpm/CFG目录下找到PKPM.INI文件。
2、将notdynamicsnap=0改成notdynamicsnap=1就行了。
3、pkpm没有明确的中文名称,一般就直接读pkpm的英文字母。命名是这样的:最早这个软件只有两个模块,PK(排架框架设计)、PMCAD(平面辅助设计),因此合称pkpm。现在这两个模块依然还在,功能大大加强,更加入了大量功能更强大的模块,但是软件名称却不改了还是PKPM。